Davich Lohr brokered by Urbanista - 321-277-4797
MLS: O6401733 $414,990
3 Bedrooms with 3 Baths10063 GAZEBO ALLEY
ORLANDO FL 32832MLS: O6401733
Status: ACTIVE
List Price: $414,990
Price per SQFT: $281
Square Footage: 14763 Bedrooms
3 Baths
Year Built: 2026
Zip Code: 32832
Listing Remarks
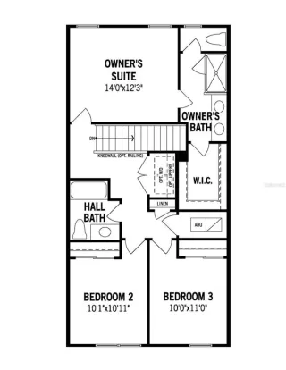
Discover the Aurora, a beautifully designed new construction townhome near Lake Nona offering the perfect blend of style, comfort, and convenience. Step inside to an inviting open-concept floor plan where the spacious gathering room flows seamlessly into the dining area and modern kitchen, creating a bright and airy living space ideal for entertaining or everyday living. The private owner’s suite serves as a relaxing retreat, featuring a spacious bedroom and a large walk-in closet with ample storage. Two additional bedrooms provide versatility for a growing family, home office, fitness room, or guest accommodations. Located near Lake Nona, this thoughtfully designed townhome offers easy access to top-rated schools, Medical City, Orlando International Airport, premier shopping, dining, and major highways. Enjoy low-maintenance living in one of Central Florida’s most desirable areas.
Address: 10063 GAZEBO ALLEY ORLANDO FL 32832
Listing Courtesy of MATTAMY REAL ESTATE SERVICES
Condo Mania Agent
Anna Lohr
Urbanista
Davich Lohr Team
Phone: 321-277-4797
Request More Information
Listing Details
STATUS: Active SPECIAL LISTING CONDITIONS: None LISTING CONTRACT DATE: 2026-04-23 BEDROOMS: 3 BATHROOMS FULL: 2 BATHROOMS HALF: 1 LIVING AREA SQ FT: 1476 BUILDING AREA TOTAL: 1988 YEAR BUILT: 2026 TAXES: $1,590 HOA/MGMT CO: Jorge Aguilo HOA/MGMT PHONE: 407-906-0502 HOA FEES FREQUENCY: Monthly HOA FEES: $275 HOA INCLUDES: Community Pool, Internet, Maintenance Structure, Maintenance Grounds, Pool Maintenance, Recreational Facilities HOA AMENITIES: Clubhouse, Fitness Center, Park, Playground, Pool APPLIANCES INCLUDED: Dishwasher, Disposal, Dryer, Electric Water Heater, Microwave, Range, Refrigerator, Washer ARCHITECTURAL STYLE: Other CONSTRUCTION: Block, Stucco, Wood Frame COMMUNITY FEATURES: Clubhouse, Community Mailbox, Dog Park, Fitness Center, Park, Playground, Pool, Sidewalks EXTERIOR FEATURES: Irrigation System, Lighting, Rain Gutters, Sidewalk FLOORING: Carpet, Tile FURNISHED: Unfurnished HEATING: Central, Electric COOLING: Central Air INTERIOR FEATURES: Eating Space In Kitchen, High Ceilings, Kitchen/Family Room Combo, Living Room/Dining Room Combo, Open Floorplan, PrimaryBedroom Upstairs, Stone Counters, Thermostat, Walk-In Closet(s) LAUNDRY FEATURES: Inside, Laundry Closet, Upper Level LEGAL DESCRIPTION: STARWOOD PH N - 5 PB 116 PG 110 LOT 1025 # GARAGE SPACES: 2 PARKING FEATURES: Alley Access PETS ALLOWED Y/N: Yes PROPERTY TYPE: Residential PROPERTY SUB TYPE: Townhouse ROOF: Shingle ROOMS TOTAL: 6 DIRECTION FACES: Northwest LISTING AGENT: AMANDA WARREN LISTING OFFICE: MATTAMY REAL ESTATE SERVICES
Estimated Monthly Payments
List Price: $414,990 20% Down Payment: $82,998 Loan Amount: $331,992 Loan Type: 30 Year Fixed Interest Rate: 6.5 % Monthly Payment: $2,098 Estimate does not include taxes, fees, insurance.
Request More Information
Property Location: 10063 GAZEBO ALLEY ORLANDO FL 32832
This Listing
Active Listings Nearby
Condo Mania Agent
Anna Lohr
Urbanista
Davich Lohr Team
Phone: 321-277-4797
The Fair Housing Act prohibits discrimination in housing based on color, race, religion, national origin, sex, familial status, or disability.
All listing information is deemed reliable but not guaranteed and should be independently verified through personal inspection by appropriate professionals. Listings displayed on this website may be subject to prior sale or removal from sale; availability of any listing should always be independently verified.
Copyright © 2026 My Florida Regional MLS DBA Stellar MLS. All rights reserved.
Information Deemed Reliable But Not Guaranteed. The information being provided is for consumer's personal, non-commercial use and may not be used for any purpose other than to identify prospective properties consumers may be interested in purchasing. This information, including square footage, while not guaranteed, has been acquired from sources believed to be reliable.
Last Updated: 2026-04-24 12:10:15
Orlando Condo Mania






