Davich Lohr brokered by Urbanista - 321-277-4797
MLS: O6386224 $230,000
2 Bedrooms with 2 Baths5130 LAZY OAKS DRIVE UNIT 5130
WINTER PARK FL 32792MLS: O6386224
Status: PENDING
List Price: $230,000
Price per SQFT: $228
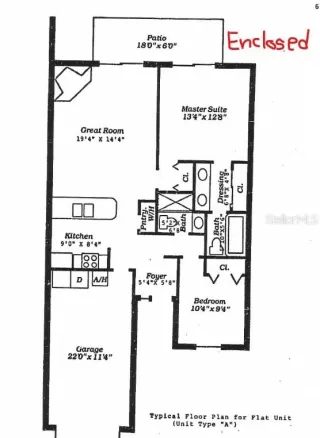
Square Footage: 10082 Bedrooms
2 Baths
Year Built: 1982
Zip Code: 32792
Listing Remarks
Under contract-accepting backup offers. Low HOA!!! Spacious 2-bedroom unit offering 1,008 sq ft plus a 16x8 enclosed Florida room and a one-car garage, presenting a great opportunity for an investor or buyer ready to add value. The unit has been professionally cleaned, and following a water heater failure, ServPro inspected and addressed the area—no severe damage reported. As a result, baseboards have been removed throughout, and carpet has been removed from both bedrooms, leaving bare concrete and a blank slate for new flooring. The home features vaulted ceilings in the living and dining areas, a large welcoming foyer, and a functional kitchen with pantry and dual lazy Susan cabinets. Major components include a 2023 roof, 2025 water heater,2010 A/C, poly piping, and a Gould-brand electrical panel. HOA covers roof, exterior maintenance, termite bond, and pest control; buyer approval is required. Recent comparable sales support strong potential—bring your vision and make this one your own.
Address: 5130 LAZY OAKS DRIVE UNIT 5130 WINTER PARK FL 32792
Listing Courtesy of CHARLES RUTENBERG REALTY ORLANDO
Condo Mania Agent
Anna Lohr
Urbanista
Davich Lohr Team
Phone: 321-277-4797
Request More Information
Listing Details
STATUS: Pending SPECIAL LISTING CONDITIONS: None LISTING CONTRACT DATE: 2026-03-03 BEDROOMS: 2 BATHROOMS FULL: 2 BATHROOMS HALF: 0 LIVING AREA SQ FT: 1008 BUILDING AREA TOTAL: 1296 YEAR BUILT: 1982 TAXES: $749 HOA/MGMT CO: Lazy Oaks HOA/MGMT PHONE: 407-695-7898 HOA FEES FREQUENCY: Monthly HOA FEES: $277 HOA INCLUDES: Escrow Reserves Fund, Insurance, Maintenance Structure, Maintenance Grounds, Pest Control APPLIANCES INCLUDED: Dishwasher, Disposal, Electric Water Heater, Kitchen Reverse Osmosis System, Microwave, Range, Refrigerator CONSTRUCTION: Block, Brick COMMUNITY FEATURES: Buyer Approval Required, Deed Restrictions EXTERIOR FEATURES: Irrigation System, Private Mailbox, Rain Gutters FIREPLACE: Family Room, Wood Burning FLOORING: Ceramic Tile, Concrete FURNISHED: Partially HEATING: Central COOLING: Central Air INTERIOR FEATURES: Ceiling Fan(s), High Ceilings, Living Room/Dining Room Combo, Primary Bedroom Main Floor, Solid Surface Counters, Split Bedroom, Thermostat, Vaulted Ceiling(s), Window Treatments LAUNDRY FEATURES: In Garage LEGAL DESCRIPTION: UNIT 5130 LAZY OAKS CONDOMINIUM ORB 1350 PG 849 LOT FEATURES: In County, Landscaped # GARAGE SPACES: 1 PARKING FEATURES: Parking Pad PETS ALLOWED Y/N: Breed Restrictions, Yes PROPERTY TYPE: Residential PROPERTY SUB TYPE: Condominium ROOF: Shingle ROOMS TOTAL: 6 STORIES TOTAL: 1 DIRECTION FACES: South LISTING AGENT: JACOB ZAMPELLA LISTING OFFICE: CHARLES RUTENBERG REALTY ORLANDO
Estimated Monthly Payments
List Price: $230,000 20% Down Payment: $46,000 Loan Amount: $184,000 Loan Type: 30 Year Fixed Interest Rate: 6.5 % Monthly Payment: $1,163 Estimate does not include taxes, fees, insurance.
Request More Information
Property Location: 5130 LAZY OAKS DRIVE UNIT 5130 WINTER PARK FL 32792
This Listing
Active Listings Nearby
Condo Mania Agent
Anna Lohr
Urbanista
Davich Lohr Team
Phone: 321-277-4797
You Might Also Be Interested In...
The Fair Housing Act prohibits discrimination in housing based on color, race, religion, national origin, sex, familial status, or disability.
All listing information is deemed reliable but not guaranteed and should be independently verified through personal inspection by appropriate professionals. Listings displayed on this website may be subject to prior sale or removal from sale; availability of any listing should always be independently verified.
Copyright © 2026 My Florida Regional MLS DBA Stellar MLS. All rights reserved.
Information Deemed Reliable But Not Guaranteed. The information being provided is for consumer's personal, non-commercial use and may not be used for any purpose other than to identify prospective properties consumers may be interested in purchasing. This information, including square footage, while not guaranteed, has been acquired from sources believed to be reliable.
Last Updated: 2026-04-29 03:09:25
Orlando Condo Mania






